Продолжить в этом городе?
Дом, 73 м², 15 сот. Владимирская область, Камешковский муниципальный округ, деревня Аксенцево, 167
Основные характеристики
Описание
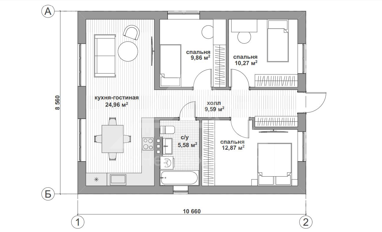
Номер объекта - 1523 Предлагаем к продаже проект дома нью 73. Участок входит в стоимость. Торг на участок обсуждается. Звоните ответим на все вопросы. Адрес: Владимирская область, Камешковский муниципальный округ, деревня Аксенцево, 167. Комплектация дома "Базовая": В "Базовую" комплектацию дома входит полный закрытый теплый контур: • Несущие стены газобетон / теплая керамика • Утепленная кровля из металлочерепицы • Окна двухкамерные с тройным стеклопакетом • Металлическая входная дверь • Фундамент (в зависимости от участка) • Утепленная отмостка О доме: • Площадь дома: 73.00 м2 • Высота потолка: 2.90 м. • Кровля: кликфальцевая • Подшивка свесов софитами • Фасад: штукатурка Короед В доме: • Кухня-гостиная: 25.00 м2 • Комнаты: 3, площадью 10-13-10 м2 • Санузел: Совмещенный в доме • Ванная: Стандартная Расположение в доме: На этаже расположено: Кухня-гостиная, 3 Спальни, Сан. Узел, Холл Об участке: • Форма: Квадратная • Рельеф: Ровный • Земля: Земля плодородная. Суглинок. Участок чистый без деревьев и кустарников — идеален для строительства или планировки под себя. • Категория: Населенных пунктов • Вид разрешенного использования: Для индивидуального жилищного строительства • Забор: Отсутствует • Межевание участка: Произведено/Колышки по всему периметру участка • Границы: Уточнены Инфраструктура на участке: • Вода: Колодец, глубина 7-8 метров • Электричество: подведено к столбу. Столб на границе участка. На столбе уже есть распредкоробка. Требуется только подключение к сети • Канализация: Нет • Газ: Есть в населенном пункте Окружение: • Дорога к участку: Асфальт до съезда на линию. По линии щебёнка. Примерно 50м • Зимой участок: доступен • До ближайшей остановки — от 200 до 500 метров Места рядом: • Остановка общественного транспорта; Автобусы 107 и 179. • На выезде к трассе расположены две автозаправочные станции • В соседней деревне Давыдово, расположенной от участка примерно 1 км, есть - 3 Продовольственных магазина; Школа; Фельдшерско-акушерский пункт; Церковь Преображения Господня в Давыдово; Камешковский районный историко-краеведческий музей, Музей А.П. Бородина; Дом культуры. Если вас заинтересовал дом — обращайтесь за подробностями. Всегда рады помочь. Помощь в получении кэшбека при покупке недвижимости, ипотеки, реализации материнского капитала и сертификатов. Гарантируем безопасность сделки.
Вам может быть интересно














